今天小编给大家讲解CAD快速看图转换t3格式的操作教程,有需要或者有兴趣的朋友们可以看一看下文,希望可以帮到有需要的人。
CAD快速看图转换t3格式的操作教程
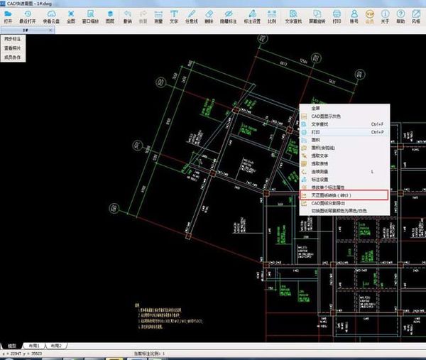
我们需要先用CAD快速看图打开需要转t3的图纸。点击VIP按钮中的“天正图纸转换(转t3)”按钮。或者直接在图纸上点右键出现菜单,选择转t3。
然后我们点击之后,出现对话框,选择转换t3后的保存位置、名字、版本,点击保存。
这个时候经过几秒,提示转换成功。
最后一步我们在保存的位置就可以找到转后的图纸了
按上文讲述的CAD快速看图转换t3格式的详细过程介绍,伙伴们自己也赶紧去试试吧!
体育竞技
310.89MB
47.8MB
88.6MB
游戏辅助 | 4.5GB
2024-04-24
动作格斗 | 20GB
2024-04-23
角色扮演 | 3.2GB
2024-04-22
角色扮演 | 500MB
休闲益智 | 30.17MB
2024-04-18
生活服务 | 144.35MB
学习教育 | 24.26MB
2023-11-08
系统工具 | 6.78MB
体育竞技 | 88.6MB
体育竞技 | 47.8MB
体育竞技 | 310.89MB
CAD快速看图转换t3格式的操作教程
今天小编给大家讲解CAD快速看图转换t3格式的操作教程,有需要或者有兴趣的朋友们可以看一看下文,希望可以帮到有需要的人。
CAD快速看图转换t3格式的操作教程
我们需要先用CAD快速看图打开需要转t3的图纸。点击VIP按钮中的“天正图纸转换(转t3)”按钮。或者直接在图纸上点右键出现菜单,选择转t3。
然后我们点击之后,出现对话框,选择转换t3后的保存位置、名字、版本,点击保存。
这个时候经过几秒,提示转换成功。
最后一步我们在保存的位置就可以找到转后的图纸了
按上文讲述的CAD快速看图转换t3格式的详细过程介绍,伙伴们自己也赶紧去试试吧!
体育竞技
310.89MB
体育竞技
47.8MB
体育竞技
88.6MB
游戏辅助 | 4.5GB
2024-04-24
动作格斗 | 20GB
2024-04-23
角色扮演 | 3.2GB
2024-04-22
角色扮演 | 500MB
2024-04-22
休闲益智 | 30.17MB
2024-04-18
生活服务 | 144.35MB
2024-04-18
生活服务 | 144.35MB
2024-04-18
生活服务 | 144.35MB
2024-04-18
学习教育 | 24.26MB
2023-11-08
系统工具 | 6.78MB
2023-11-08
体育竞技 | 88.6MB
体育竞技 | 47.8MB
体育竞技 | 310.89MB