今天小编就带大家来共同学习CAD快速看图设置测量比例的操作教程,希望可以帮助到有需要的小伙伴哦,下面就是详细完整的操作步骤。
CAD快速看图设置测量比例的操作教程
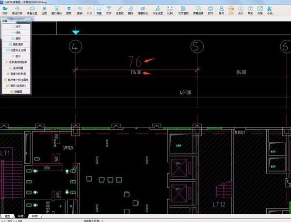
我们先在布局中测量或大样图测量中,会遇到测量结果和标注不一致,如图。此时点击工具栏的“调整比例”按钮,进行测量比例调整。
然后我们按照鼠标旁边的提示,选择一条已知长度的线段端点。
这时弹出对话框,填入实际距离(图纸上标注的),点击确定。
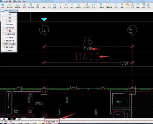
此时,重新测量刚才的线段,发现测量结果和标注一致。观察软件下方的当前比例,可以发现比例已经改变。
相信你们看完了上文所述的CAD快速看图设置测量比例的具体操作流程,大家应该都学会了吧!
体育竞技
88.6MB
310.89MB
47.8MB
游戏辅助 | 4.5GB
2024-04-24
动作格斗 | 20GB
2024-04-23
角色扮演 | 3.2GB
2024-04-22
角色扮演 | 500MB
休闲益智 | 30.17MB
2024-04-18
生活服务 | 144.35MB
学习教育 | 24.26MB
2023-11-08
系统工具 | 6.78MB
体育竞技 | 88.6MB
体育竞技 | 47.8MB
体育竞技 | 310.89MB
CAD快速看图设置测量比例的操作教程
今天小编就带大家来共同学习CAD快速看图设置测量比例的操作教程,希望可以帮助到有需要的小伙伴哦,下面就是详细完整的操作步骤。
CAD快速看图设置测量比例的操作教程
我们先在布局中测量或大样图测量中,会遇到测量结果和标注不一致,如图。此时点击工具栏的“调整比例”按钮,进行测量比例调整。
然后我们按照鼠标旁边的提示,选择一条已知长度的线段端点。
这时弹出对话框,填入实际距离(图纸上标注的),点击确定。
此时,重新测量刚才的线段,发现测量结果和标注一致。观察软件下方的当前比例,可以发现比例已经改变。
相信你们看完了上文所述的CAD快速看图设置测量比例的具体操作流程,大家应该都学会了吧!
体育竞技
88.6MB
体育竞技
310.89MB
体育竞技
47.8MB
游戏辅助 | 4.5GB
2024-04-24
动作格斗 | 20GB
2024-04-23
角色扮演 | 3.2GB
2024-04-22
角色扮演 | 500MB
2024-04-22
休闲益智 | 30.17MB
2024-04-18
生活服务 | 144.35MB
2024-04-18
生活服务 | 144.35MB
2024-04-18
生活服务 | 144.35MB
2024-04-18
学习教育 | 24.26MB
2023-11-08
系统工具 | 6.78MB
2023-11-08
体育竞技 | 88.6MB
体育竞技 | 47.8MB
体育竞技 | 310.89MB