你们知道CAD快速看图怎样设置比例吗?怎么样开启这项功能呢?对此感兴趣的用户可以随小编去下文看看CAD快速看图设置比例的操作教程。
CAD快速看图设置比例的操作教程
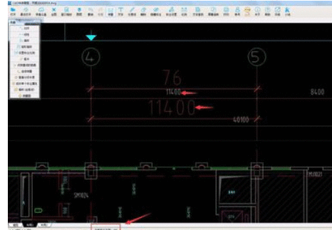
我们先在布局中测量或大样图测量中,会遇到测量结果和标注不一致,如图。此时点击工具栏的“调整比例”按钮,进行测量比例调整。
然后我们按照鼠标旁边的提示,选择一条已知长度的线段端点。
这时弹出对话框,填入实际距离(图纸上标注的),点击确定。
此时,重新测量刚才的线段,发现测量结果和标注一致。观察软件下方的当前比例,可以发现比例已经改变。
看完了上文描述的CAD快速看图设置比例的具体操作步骤,你们是不是都学会了呀!
体育竞技
47.8MB
310.89MB
88.6MB
游戏辅助 | 4.5GB
2024-04-24
动作格斗 | 20GB
2024-04-23
角色扮演 | 3.2GB
2024-04-22
角色扮演 | 500MB
休闲益智 | 30.17MB
2024-04-18
生活服务 | 144.35MB
学习教育 | 24.26MB
2023-11-08
系统工具 | 6.78MB
体育竞技 | 88.6MB
体育竞技 | 47.8MB
体育竞技 | 310.89MB
CAD快速看图设置比例的操作教程
你们知道CAD快速看图怎样设置比例吗?怎么样开启这项功能呢?对此感兴趣的用户可以随小编去下文看看CAD快速看图设置比例的操作教程。
CAD快速看图设置比例的操作教程
我们先在布局中测量或大样图测量中,会遇到测量结果和标注不一致,如图。此时点击工具栏的“调整比例”按钮,进行测量比例调整。
然后我们按照鼠标旁边的提示,选择一条已知长度的线段端点。
这时弹出对话框,填入实际距离(图纸上标注的),点击确定。
此时,重新测量刚才的线段,发现测量结果和标注一致。观察软件下方的当前比例,可以发现比例已经改变。
看完了上文描述的CAD快速看图设置比例的具体操作步骤,你们是不是都学会了呀!
体育竞技
47.8MB
体育竞技
310.89MB
体育竞技
88.6MB
游戏辅助 | 4.5GB
2024-04-24
动作格斗 | 20GB
2024-04-23
角色扮演 | 3.2GB
2024-04-22
角色扮演 | 500MB
2024-04-22
休闲益智 | 30.17MB
2024-04-18
生活服务 | 144.35MB
2024-04-18
生活服务 | 144.35MB
2024-04-18
生活服务 | 144.35MB
2024-04-18
学习教育 | 24.26MB
2023-11-08
系统工具 | 6.78MB
2023-11-08
体育竞技 | 88.6MB
体育竞技 | 47.8MB
体育竞技 | 310.89MB