刚入手CAD快速看图的用户,不清楚怎样设置离线VIP?现在就跟着小编一起来看一下CAD快速看图离线VIP的设置方法吧。
CAD快速看图离线VIP的设置方法
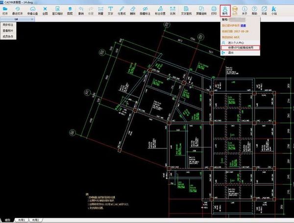
我们先打开CAD快速看图,点击“账号”按钮登录自己的快速看图账号。如果你是VIP会员,那么会在账号按钮里出现一个按钮“申请VIP功能离线使用”。如果你不是VIP会员,那么没有这个按钮。
然后我们点击“申请VIP功能离线使用”按钮,会出现成功提示。
最后我们点击“查看证书”,可以看到当前账号,可使用的期限等。此时就代表这台电脑可以在没有网络的情况下使用VIP功能了。
根据以上为你们描述的CAD快速看图离线VIP的设置方法,你们是不是都明白了呀!
体育竞技
47.8MB
310.89MB
88.6MB
游戏辅助 | 4.5GB
2024-04-24
动作格斗 | 20GB
2024-04-23
角色扮演 | 3.2GB
2024-04-22
角色扮演 | 500MB
休闲益智 | 30.17MB
2024-04-18
生活服务 | 144.35MB
学习教育 | 24.26MB
2023-11-08
系统工具 | 6.78MB
体育竞技 | 88.6MB
体育竞技 | 47.8MB
体育竞技 | 310.89MB
CAD快速看图离线VIP的设置方法
刚入手CAD快速看图的用户,不清楚怎样设置离线VIP?现在就跟着小编一起来看一下CAD快速看图离线VIP的设置方法吧。
CAD快速看图离线VIP的设置方法
我们先打开CAD快速看图,点击“账号”按钮登录自己的快速看图账号。如果你是VIP会员,那么会在账号按钮里出现一个按钮“申请VIP功能离线使用”。如果你不是VIP会员,那么没有这个按钮。
然后我们点击“申请VIP功能离线使用”按钮,会出现成功提示。
最后我们点击“查看证书”,可以看到当前账号,可使用的期限等。此时就代表这台电脑可以在没有网络的情况下使用VIP功能了。
根据以上为你们描述的CAD快速看图离线VIP的设置方法,你们是不是都明白了呀!
体育竞技
47.8MB
体育竞技
310.89MB
体育竞技
88.6MB
游戏辅助 | 4.5GB
2024-04-24
动作格斗 | 20GB
2024-04-23
角色扮演 | 3.2GB
2024-04-22
角色扮演 | 500MB
2024-04-22
休闲益智 | 30.17MB
2024-04-18
生活服务 | 144.35MB
2024-04-18
生活服务 | 144.35MB
2024-04-18
生活服务 | 144.35MB
2024-04-18
学习教育 | 24.26MB
2023-11-08
系统工具 | 6.78MB
2023-11-08
体育竞技 | 88.6MB
体育竞技 | 47.8MB
体育竞技 | 310.89MB