刚入手AutoCAD的朋友,还不太了解AutoCAD制作强电布置图的操作,小编今天就带来AutoCAD制作强电布置图的图文操作过程,感兴趣的小伙伴们一起学习一下吧!
AutoCAD制作强电布置图的图文操作过程
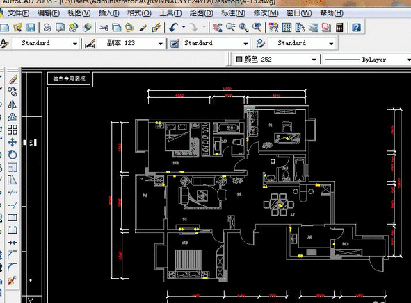
先打开AutoCAD软件,然后复制上一篇的内容出来,输入命令co空格。
接着在把这里的空调插座删除了。
然后再把电源插座复制上。
这时候在粘贴到客厅里,这里有四个插座,有一些插座是有8个插入口的,有8个的的话安装一个就可以了,这个可以放以电视柜后面。
然后看看下图在放两个插座到沙发后面,这里主要是方便了以后可以插电。
其实这里主要还是要根据客户的需求来进行布置。
以上就是我为大家分享的全部内容了,更多软件教程可以关注下载之家
体育竞技
47.8MB
88.6MB
310.89MB
游戏辅助 | 4.5GB
2024-04-24
动作格斗 | 20GB
2024-04-23
角色扮演 | 3.2GB
2024-04-22
角色扮演 | 500MB
休闲益智 | 30.17MB
2024-04-18
生活服务 | 144.35MB
学习教育 | 24.26MB
2023-11-08
系统工具 | 6.78MB
体育竞技 | 88.6MB
体育竞技 | 47.8MB
体育竞技 | 310.89MB
AutoCAD制作强电布置图的图文操作过程
刚入手AutoCAD的朋友,还不太了解AutoCAD制作强电布置图的操作,小编今天就带来AutoCAD制作强电布置图的图文操作过程,感兴趣的小伙伴们一起学习一下吧!
AutoCAD制作强电布置图的图文操作过程
先打开AutoCAD软件,然后复制上一篇的内容出来,输入命令co空格。
接着在把这里的空调插座删除了。
然后再把电源插座复制上。
这时候在粘贴到客厅里,这里有四个插座,有一些插座是有8个插入口的,有8个的的话安装一个就可以了,这个可以放以电视柜后面。
然后看看下图在放两个插座到沙发后面,这里主要是方便了以后可以插电。
其实这里主要还是要根据客户的需求来进行布置。
以上就是我为大家分享的全部内容了,更多软件教程可以关注下载之家
体育竞技
47.8MB
体育竞技
88.6MB
体育竞技
310.89MB
游戏辅助 | 4.5GB
2024-04-24
动作格斗 | 20GB
2024-04-23
角色扮演 | 3.2GB
2024-04-22
角色扮演 | 500MB
2024-04-22
休闲益智 | 30.17MB
2024-04-18
生活服务 | 144.35MB
2024-04-18
生活服务 | 144.35MB
2024-04-18
生活服务 | 144.35MB
2024-04-18
学习教育 | 24.26MB
2023-11-08
系统工具 | 6.78MB
2023-11-08
体育竞技 | 88.6MB
体育竞技 | 47.8MB
体育竞技 | 310.89MB