在使用CAD软件的过程里,有朋友还不会设置按比例出图,下面我们一起去学习一下CAD设置按比例出图的操作流程吧,相信对大家一定会有所帮助的。
CAD设置按比例出图的操作流程
1.按照所谓“绘图比例”绘制图形。此处所定义的“绘图比例”即为“一根在CAD里的线段,其长度与其所表示物体实际长度的比值”,此处建议无论出图比例如何,在首次绘制物体的时候,严格按1:1绘制。
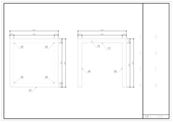
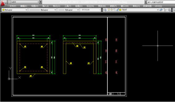
2.按照1:1制作图框,然后放大N倍(使用SCALE命令),知道图框能权重所绘制的图形为止,记录下N的值,则改比例即为“图框比例”,样例中表示的图框比例为1:5
3.按照已确定的比例定义标注及字体大小(即字体的大小、标注数字大小、标注线的长度、标注箭头的大小等比例参数)将所需表达的信息添加至图纸内
4.菜单栏中选择文件--打印,按照下图设置打印参数,将打印比例设置为5,并在“打印范围”中选择“窗口”,框选图纸区域,强迫症患者必填“居中打印”选项。“打印比例”可定义为:CAD将电子图纸转换至纸张是的一个缩放参数,当你绘制一根100mm的线时,使用1:1的打印比例将其打印出来,那么用尺子在纸上测量这条线的长度,得到的数据将是100mm;而使用1:10的打印比例时,测量的长度就将变为100mm
5.打印效果如图
方法二:
1.同样按照1:1绘制图形,图形参考方法一种例图,点开“布局”选显卡,按照A3大小1:1绘制图框
2.利用“MV”命令,在图中“图形区域”内绘制一个视口,得到一个图纸全视图。此时图纸的比例为非整数,需要进一步调整
3.双击视口区域激活视口,单击CAD右下角“注释比例”列表,更改“注释比例”,例如1:5
4.此时,图纸比例即为所选择的注释比例
5.同样打开“打印”设置,窗口选中图纸区域,但此时,“打印比例”仅需输入“1”即可。单击“确定“”,完成打印
以上这里为各位分享了CAD设置按比例出图的操作流程。有需要的朋友赶快来看看本篇文章吧。
体育竞技
88.6MB
310.89MB
47.8MB
游戏辅助 | 4.5GB
2024-04-24
动作格斗 | 20GB
2024-04-23
角色扮演 | 3.2GB
2024-04-22
角色扮演 | 500MB
休闲益智 | 30.17MB
2024-04-18
生活服务 | 144.35MB
学习教育 | 24.26MB
2023-11-08
系统工具 | 6.78MB
体育竞技 | 88.6MB
体育竞技 | 47.8MB
体育竞技 | 310.89MB
CAD设置按比例出图的操作流程
在使用CAD软件的过程里,有朋友还不会设置按比例出图,下面我们一起去学习一下CAD设置按比例出图的操作流程吧,相信对大家一定会有所帮助的。
CAD设置按比例出图的操作流程
1.按照所谓“绘图比例”绘制图形。此处所定义的“绘图比例”即为“一根在CAD里的线段,其长度与其所表示物体实际长度的比值”,此处建议无论出图比例如何,在首次绘制物体的时候,严格按1:1绘制。
2.按照1:1制作图框,然后放大N倍(使用SCALE命令),知道图框能权重所绘制的图形为止,记录下N的值,则改比例即为“图框比例”,样例中表示的图框比例为1:5
3.按照已确定的比例定义标注及字体大小(即字体的大小、标注数字大小、标注线的长度、标注箭头的大小等比例参数)将所需表达的信息添加至图纸内
4.菜单栏中选择文件--打印,按照下图设置打印参数,将打印比例设置为5,并在“打印范围”中选择“窗口”,框选图纸区域,强迫症患者必填“居中打印”选项。“打印比例”可定义为:CAD将电子图纸转换至纸张是的一个缩放参数,当你绘制一根100mm的线时,使用1:1的打印比例将其打印出来,那么用尺子在纸上测量这条线的长度,得到的数据将是100mm;而使用1:10的打印比例时,测量的长度就将变为100mm
5.打印效果如图
方法二:
1.同样按照1:1绘制图形,图形参考方法一种例图,点开“布局”选显卡,按照A3大小1:1绘制图框
2.利用“MV”命令,在图中“图形区域”内绘制一个视口,得到一个图纸全视图。此时图纸的比例为非整数,需要进一步调整
3.双击视口区域激活视口,单击CAD右下角“注释比例”列表,更改“注释比例”,例如1:5
4.此时,图纸比例即为所选择的注释比例
5.同样打开“打印”设置,窗口选中图纸区域,但此时,“打印比例”仅需输入“1”即可。单击“确定“”,完成打印
以上这里为各位分享了CAD设置按比例出图的操作流程。有需要的朋友赶快来看看本篇文章吧。
体育竞技
88.6MB
体育竞技
310.89MB
体育竞技
47.8MB
游戏辅助 | 4.5GB
2024-04-24
动作格斗 | 20GB
2024-04-23
角色扮演 | 3.2GB
2024-04-22
角色扮演 | 500MB
2024-04-22
休闲益智 | 30.17MB
2024-04-18
生活服务 | 144.35MB
2024-04-18
生活服务 | 144.35MB
2024-04-18
生活服务 | 144.35MB
2024-04-18
学习教育 | 24.26MB
2023-11-08
系统工具 | 6.78MB
2023-11-08
体育竞技 | 88.6MB
体育竞技 | 47.8MB
体育竞技 | 310.89MB