许多朋友喜欢使用cad软件,而本文就是为大家讲解cad设置地砖尺寸的操作流程的,想要了解的就来学习吧,相信对大家一定会有所帮助的哦。
cad设置地砖尺寸的操作流程
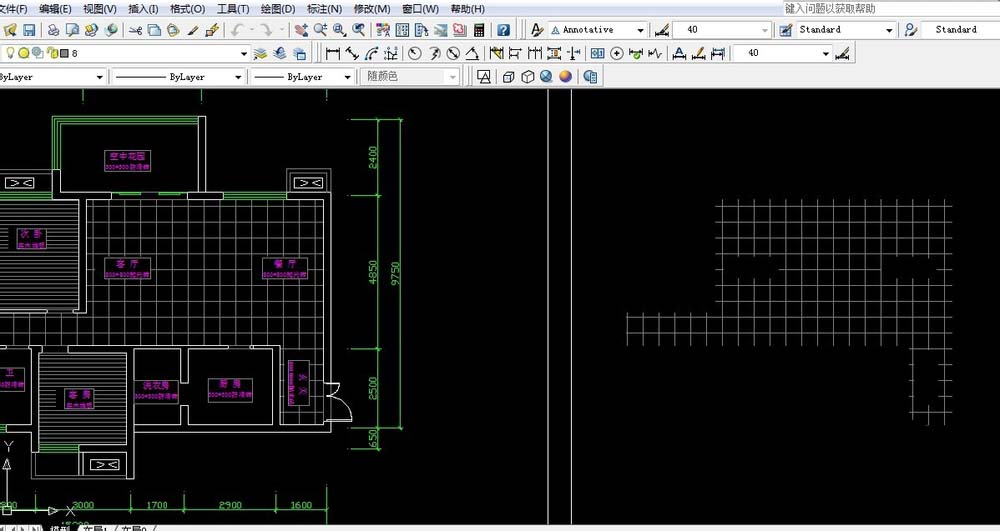
这里演示,准备好了一张图形,如图空白区域需要填充的地砖。
1、输入命令H,并确实,弹出对话框,
2、查看“图案填充”--类型和图案--类型--用户定义,
3、勾选--双向,比如是需要画500*500的地砖,就把间距输入“500”,300*300就输入300,这里就不多举例了,我们先画500来演示,
4、拾取点,直接拾取客厅与餐厅部分,如图:
5、用命令“空格键”确定,弹出对话框,先预览下效果,如图:
6、再次空格键确定,并在弹出的对话框用鼠标点击确定。填充算是玩了,接下来检查下,填充的尺寸是否是500*500,把填充好的图形用CO/CP复制出来一个,如图:
7、用X命令打散复制出来的图形,(打散是为了好用线性标注来确定端点以便量好尺寸)如图:
8、输入命令DLI,随意找一个地砖来测量一下尺寸,如图,显示500*500,说明填充设置正确。
9、OK,关于地钻填充的基本原理,就是这样了。
各位小伙伴们,看完上面的精彩内容,都清楚cad设置地砖尺寸的操作流程了吧!
体育竞技
88.6MB
47.8MB
310.89MB
游戏辅助 | 4.5GB
2024-04-24
动作格斗 | 20GB
2024-04-23
角色扮演 | 3.2GB
2024-04-22
角色扮演 | 500MB
休闲益智 | 30.17MB
2024-04-18
生活服务 | 144.35MB
学习教育 | 24.26MB
2023-11-08
系统工具 | 6.78MB
体育竞技 | 88.6MB
体育竞技 | 47.8MB
体育竞技 | 310.89MB
cad设置地砖尺寸的操作流程
许多朋友喜欢使用cad软件,而本文就是为大家讲解cad设置地砖尺寸的操作流程的,想要了解的就来学习吧,相信对大家一定会有所帮助的哦。
cad设置地砖尺寸的操作流程
这里演示,准备好了一张图形,如图空白区域需要填充的地砖。
1、输入命令H,并确实,弹出对话框,
2、查看“图案填充”--类型和图案--类型--用户定义,
3、勾选--双向,比如是需要画500*500的地砖,就把间距输入“500”,300*300就输入300,这里就不多举例了,我们先画500来演示,
4、拾取点,直接拾取客厅与餐厅部分,如图:
5、用命令“空格键”确定,弹出对话框,先预览下效果,如图:
6、再次空格键确定,并在弹出的对话框用鼠标点击确定。填充算是玩了,接下来检查下,填充的尺寸是否是500*500,把填充好的图形用CO/CP复制出来一个,如图:
7、用X命令打散复制出来的图形,(打散是为了好用线性标注来确定端点以便量好尺寸)如图:
8、输入命令DLI,随意找一个地砖来测量一下尺寸,如图,显示500*500,说明填充设置正确。
9、OK,关于地钻填充的基本原理,就是这样了。
各位小伙伴们,看完上面的精彩内容,都清楚cad设置地砖尺寸的操作流程了吧!
体育竞技
88.6MB
体育竞技
47.8MB
体育竞技
310.89MB
游戏辅助 | 4.5GB
2024-04-24
动作格斗 | 20GB
2024-04-23
角色扮演 | 3.2GB
2024-04-22
角色扮演 | 500MB
2024-04-22
休闲益智 | 30.17MB
2024-04-18
生活服务 | 144.35MB
2024-04-18
生活服务 | 144.35MB
2024-04-18
生活服务 | 144.35MB
2024-04-18
学习教育 | 24.26MB
2023-11-08
系统工具 | 6.78MB
2023-11-08
体育竞技 | 88.6MB
体育竞技 | 47.8MB
体育竞技 | 310.89MB