常见的平面图大家都有印象的吧,而本章节就主要介绍了AutoCAD制作常见平面图的操作步骤,还不了解的朋友就跟着小编学习一下吧,希望对你们有所帮助。
AutoCAD制作常见平面图的操作步骤
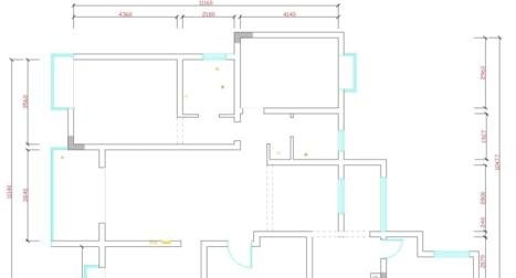
1、如下图所显示,这这一张图完成它,用直线、偏移、修剪工具来完成它。
2、在如下图是用CAD2008软件来画的,也可以用其它版本来进行画,都差不多的,这张图都有尺寸了,可以按照如下图进行来画完它。这张图不懂的可以看看前面几篇说到。
3、在选择窗,窗的颜色一般情况下是青色来显示,也可以用其它颜色。
4、如下图把其它的窗都改为青色。
5、这里的快捷键是H空格键,就会出现如下图图案填充和渐变色,选择样例。
6、选择其它图案是solid这里是表显墙,这里要标志哪里是墙。
7、单击要拾取点。
8、选择如下图这方框里,这就是柱了,是承重墙,是不能打的。选择之后按空格键。
9、在跳到如下图,单击确定就可以了。
10、如下图就完成了窗和墙的表显,以后我们看CAD图的时候就知道哪里是窗哪里是承重墙。
各位小伙伴们,看完上面的精彩内容,都清楚AutoCAD制作常见平面图的操作步骤了吧!
体育竞技
47.8MB
88.6MB
310.89MB
游戏辅助 | 4.5GB
2024-04-24
动作格斗 | 20GB
2024-04-23
角色扮演 | 3.2GB
2024-04-22
角色扮演 | 500MB
休闲益智 | 30.17MB
2024-04-18
生活服务 | 144.35MB
学习教育 | 24.26MB
2023-11-08
系统工具 | 6.78MB
体育竞技 | 88.6MB
体育竞技 | 47.8MB
体育竞技 | 310.89MB
AutoCAD制作常见平面图的操作步骤
常见的平面图大家都有印象的吧,而本章节就主要介绍了AutoCAD制作常见平面图的操作步骤,还不了解的朋友就跟着小编学习一下吧,希望对你们有所帮助。
AutoCAD制作常见平面图的操作步骤
1、如下图所显示,这这一张图完成它,用直线、偏移、修剪工具来完成它。
2、在如下图是用CAD2008软件来画的,也可以用其它版本来进行画,都差不多的,这张图都有尺寸了,可以按照如下图进行来画完它。这张图不懂的可以看看前面几篇说到。
3、在选择窗,窗的颜色一般情况下是青色来显示,也可以用其它颜色。
4、如下图把其它的窗都改为青色。
5、这里的快捷键是H空格键,就会出现如下图图案填充和渐变色,选择样例。
6、选择其它图案是solid这里是表显墙,这里要标志哪里是墙。
7、单击要拾取点。
8、选择如下图这方框里,这就是柱了,是承重墙,是不能打的。选择之后按空格键。
9、在跳到如下图,单击确定就可以了。
10、如下图就完成了窗和墙的表显,以后我们看CAD图的时候就知道哪里是窗哪里是承重墙。
各位小伙伴们,看完上面的精彩内容,都清楚AutoCAD制作常见平面图的操作步骤了吧!
体育竞技
47.8MB
体育竞技
88.6MB
体育竞技
310.89MB
游戏辅助 | 4.5GB
2024-04-24
动作格斗 | 20GB
2024-04-23
角色扮演 | 3.2GB
2024-04-22
角色扮演 | 500MB
2024-04-22
休闲益智 | 30.17MB
2024-04-18
生活服务 | 144.35MB
2024-04-18
生活服务 | 144.35MB
2024-04-18
生活服务 | 144.35MB
2024-04-18
学习教育 | 24.26MB
2023-11-08
系统工具 | 6.78MB
2023-11-08
体育竞技 | 88.6MB
体育竞技 | 47.8MB
体育竞技 | 310.89MB