有许多小伙伴还不熟悉AutoCAD设置尺寸标注的操作流程,而下面小编就分享了AutoCAD设置尺寸标注的操作方法,希望感兴趣的朋友都来共同学习哦。
AutoCAD设置尺寸标注的操作流程
一、AutoCAD创建与设置尺寸标注样式的方法
1、尺寸标注样式;
尺寸标注四要素:尺寸界线、尺寸线、尺寸起止符号(箭头)、尺寸数字;
2、标注样式管理器;
标注样式
(1)新建尺寸标注样式;
标注样式管理器
新建尺寸标注样式
选“继续”;
(2)将某标注样式“置为当前”;
(3)设置尺寸标注样式;
设置尺寸标注样式
二、标注尺寸的方法;
标注尺寸
1、“线性”标注和“对齐”标注命令;
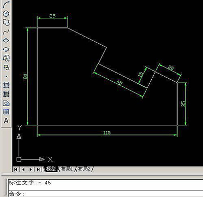
【例1】给图形标注尺寸
未标注前:
步骤:(1),打开“格式”—》“标注样式”à“标注样式管理器”
(2), 启用“线性”标注命令,用鼠标单击“轮廓线”的两个端点,
然后,输入控制距离:8,再按Enter。
(3)重复“线性”标注命令,完成全部水平和垂直尺寸标注;
(4)。 用“对齐”标注命令,完成倾斜直线尺寸标注;
2、连续标注和基线标注;
【例2】
在标注样式管理器中,新建两个标注样式:
(1)连续标注;
(2)基线标注;
将“连续标注”置为当前,标注如下。
将“基线标注”置为当前,标注如下:
3、 半径、折弯和直径标注;
先在“格式”—“标注样式”中修改标注样式;
修改标注样式
修改:
在标注样式管理器中,新建“直径标注”;
4、角度标注
上面就是小编为大家带来的AutoCAD设置尺寸标注的操作流程,一起来学习学习吧。相信是可以帮助到一些新用户的。
体育竞技
310.89MB
47.8MB
88.6MB
游戏辅助 | 4.5GB
2024-04-24
动作格斗 | 20GB
2024-04-23
角色扮演 | 3.2GB
2024-04-22
角色扮演 | 500MB
休闲益智 | 30.17MB
2024-04-18
生活服务 | 144.35MB
学习教育 | 24.26MB
2023-11-08
系统工具 | 6.78MB
体育竞技 | 88.6MB
体育竞技 | 47.8MB
体育竞技 | 310.89MB
AutoCAD设置尺寸标注的操作流程
有许多小伙伴还不熟悉AutoCAD设置尺寸标注的操作流程,而下面小编就分享了AutoCAD设置尺寸标注的操作方法,希望感兴趣的朋友都来共同学习哦。
AutoCAD设置尺寸标注的操作流程
一、AutoCAD创建与设置尺寸标注样式的方法
1、尺寸标注样式;
尺寸标注四要素:尺寸界线、尺寸线、尺寸起止符号(箭头)、尺寸数字;
2、标注样式管理器;
标注样式
(1)新建尺寸标注样式;
标注样式管理器
新建尺寸标注样式
选“继续”;
(2)将某标注样式“置为当前”;
标注样式管理器
(3)设置尺寸标注样式;
设置尺寸标注样式
二、标注尺寸的方法;
标注尺寸
1、“线性”标注和“对齐”标注命令;
【例1】给图形标注尺寸
标注尺寸
未标注前:
标注尺寸
步骤:(1),打开“格式”—》“标注样式”à“标注样式管理器”
标注样式
(2), 启用“线性”标注命令,用鼠标单击“轮廓线”的两个端点,
标注样式
标注样式
然后,输入控制距离:8,再按Enter。
标注样式
(3)重复“线性”标注命令,完成全部水平和垂直尺寸标注;
标注样式
(4)。 用“对齐”标注命令,完成倾斜直线尺寸标注;
标注样式
2、连续标注和基线标注;
【例2】
在标注样式管理器中,新建两个标注样式:
(1)连续标注;
(2)基线标注;
将“连续标注”置为当前,标注如下。
标注样式管理器
标注样式
将“基线标注”置为当前,标注如下:
标注样式管理器
标注样式
3、 半径、折弯和直径标注;
先在“格式”—“标注样式”中修改标注样式;
标注样式
修改标注样式
标注样式
修改:
标注样式
在标注样式管理器中,新建“直径标注”;
标注样式
4、角度标注
标注样式
标注样式
上面就是小编为大家带来的AutoCAD设置尺寸标注的操作流程,一起来学习学习吧。相信是可以帮助到一些新用户的。
体育竞技
310.89MB
体育竞技
47.8MB
体育竞技
88.6MB
游戏辅助 | 4.5GB
2024-04-24
动作格斗 | 20GB
2024-04-23
角色扮演 | 3.2GB
2024-04-22
角色扮演 | 500MB
2024-04-22
休闲益智 | 30.17MB
2024-04-18
生活服务 | 144.35MB
2024-04-18
生活服务 | 144.35MB
2024-04-18
生活服务 | 144.35MB
2024-04-18
学习教育 | 24.26MB
2023-11-08
系统工具 | 6.78MB
2023-11-08
体育竞技 | 88.6MB
体育竞技 | 47.8MB
体育竞技 | 310.89MB